Vivienda de tipología tradicional y estética purista adaptada a un entorno urbano de manzana cerrada. La parcela posee un desarrollo de gran fondo lo que permite plantear un patio trasero netamente aprovechable.
Condiciones de diseño urbano
Se ha prestado especial atención a su disposición dentro de la parcela y a su relación directa con el entorno próximo. Así, su esquema genera un frente a la calle principal sur a la que se asoma con una composición muy contenida y funcional, mientras el desarrollo se produce hacia el espacio privado de la parcela.
El estándar de construcción certificado Passivhaus.
La vivienda se plantea como un edificio Passivhaus con el máximo confort interior, una óptima salubridad y un consumo energético casi nulo. Es respetuosa con el medio ambiente, sostenible y bioclimática, ejecutada con materiales reciclados y reciclables y utiliza las técnicas constructivas y tecnológicas más avanzadas.
La edificación posee un funcionamiento higrotérmico y un confort interior óptimos al seguir los conceptos que definen una passivhaus o edificio de consumo energético casi nulo. Para ello, se ha generado una envolvente higrotérmica con gran capacidad aislante y con una lámina de estanqueidad que además actúa de barrera ante las ondas electromagnéticas. Sin puentes térmicos o minimizando estos al máximo posible. Las carpinterías se sitúan en el plano exacto de la envolvente térmica y se cuida al máximo su colocación de cara a la estanqueidad. Se coloca un sistema de ventilación de doble flujo con recuperación de calor de hasta el 95% y tratamiento de la humedad del aire. La aerotermia se compone de una bomba de calor incorporada de alto rendimiento que extrae energía del propio aire del ambiente interior para el acs y para la climatización de la vivienda mediante el suelo radiante/refrescante incorporado.
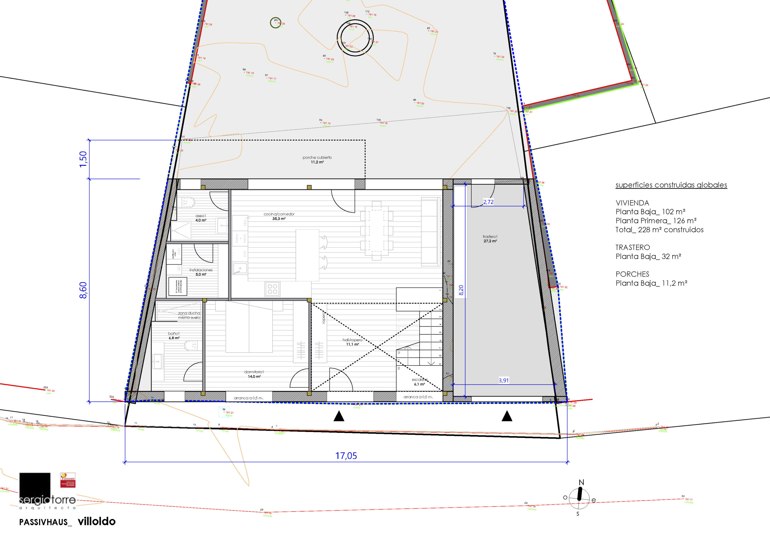
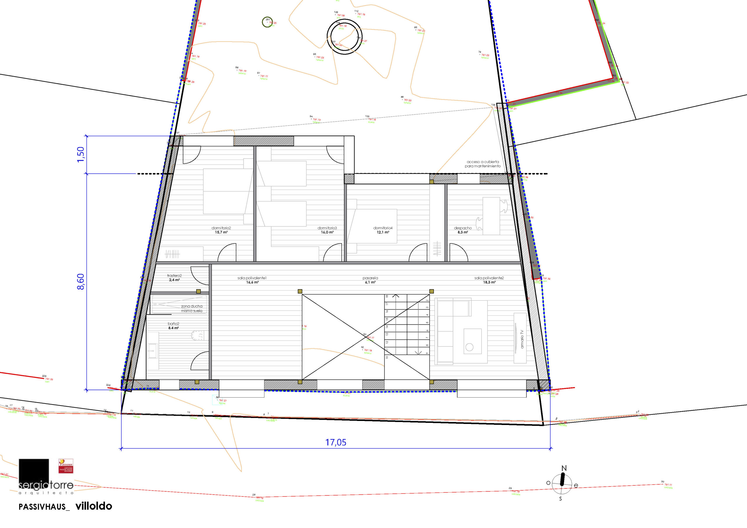
- 260 m².
- 2024 –
- Villoldo, Palencia.








