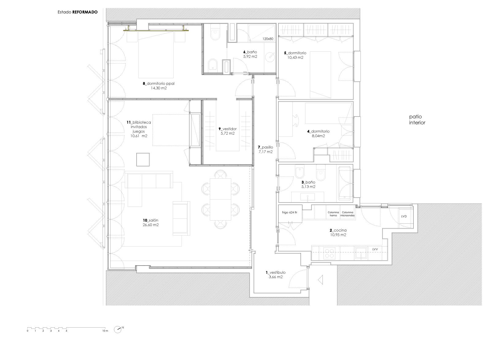
La intervención consiste en la reforma de una vivienda de los años 60 para su actualización y apertura de espacios.