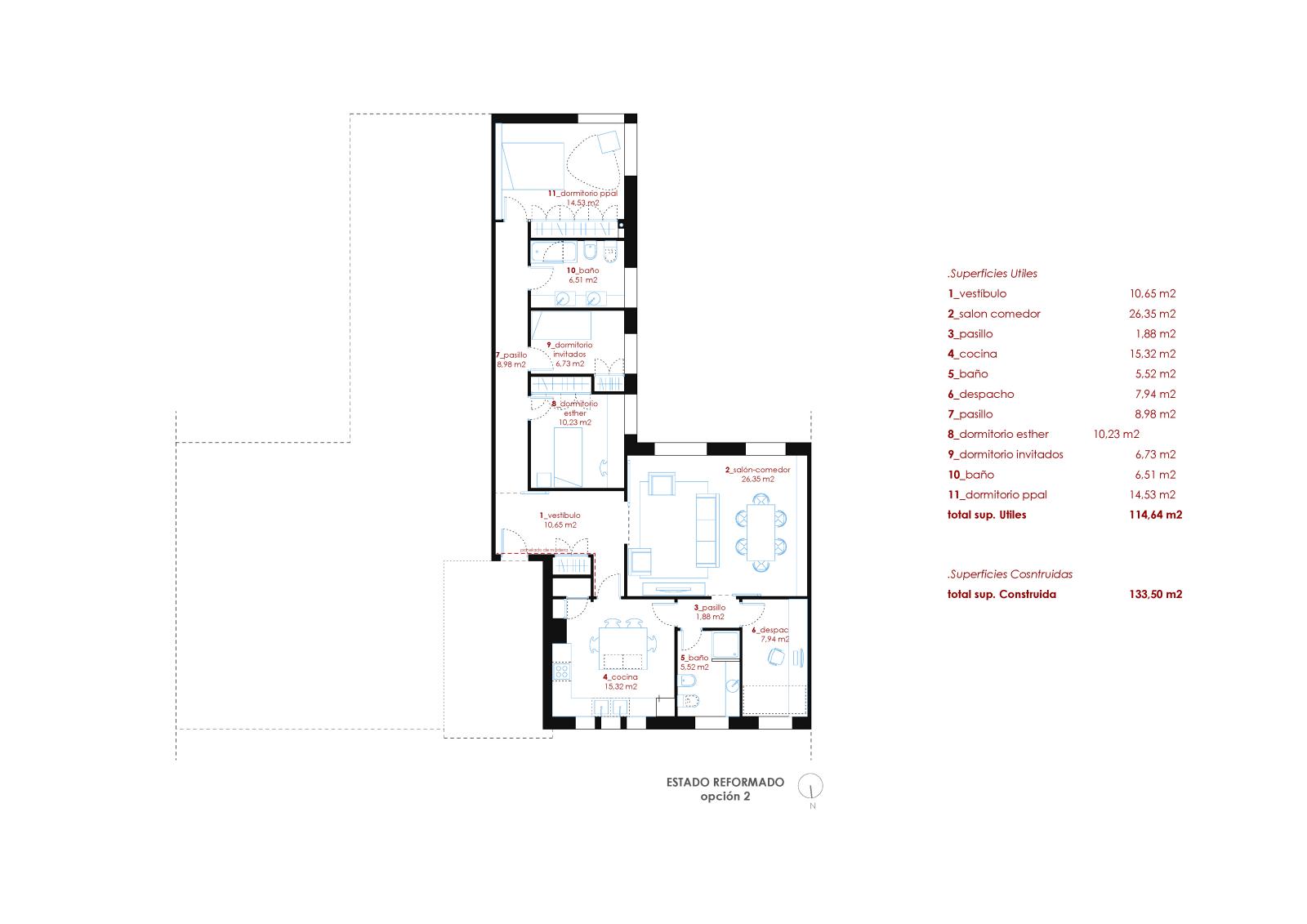
La intervención consiste en la reforma de una vivienda de los años 70 para su actualización y apertura de espacios.