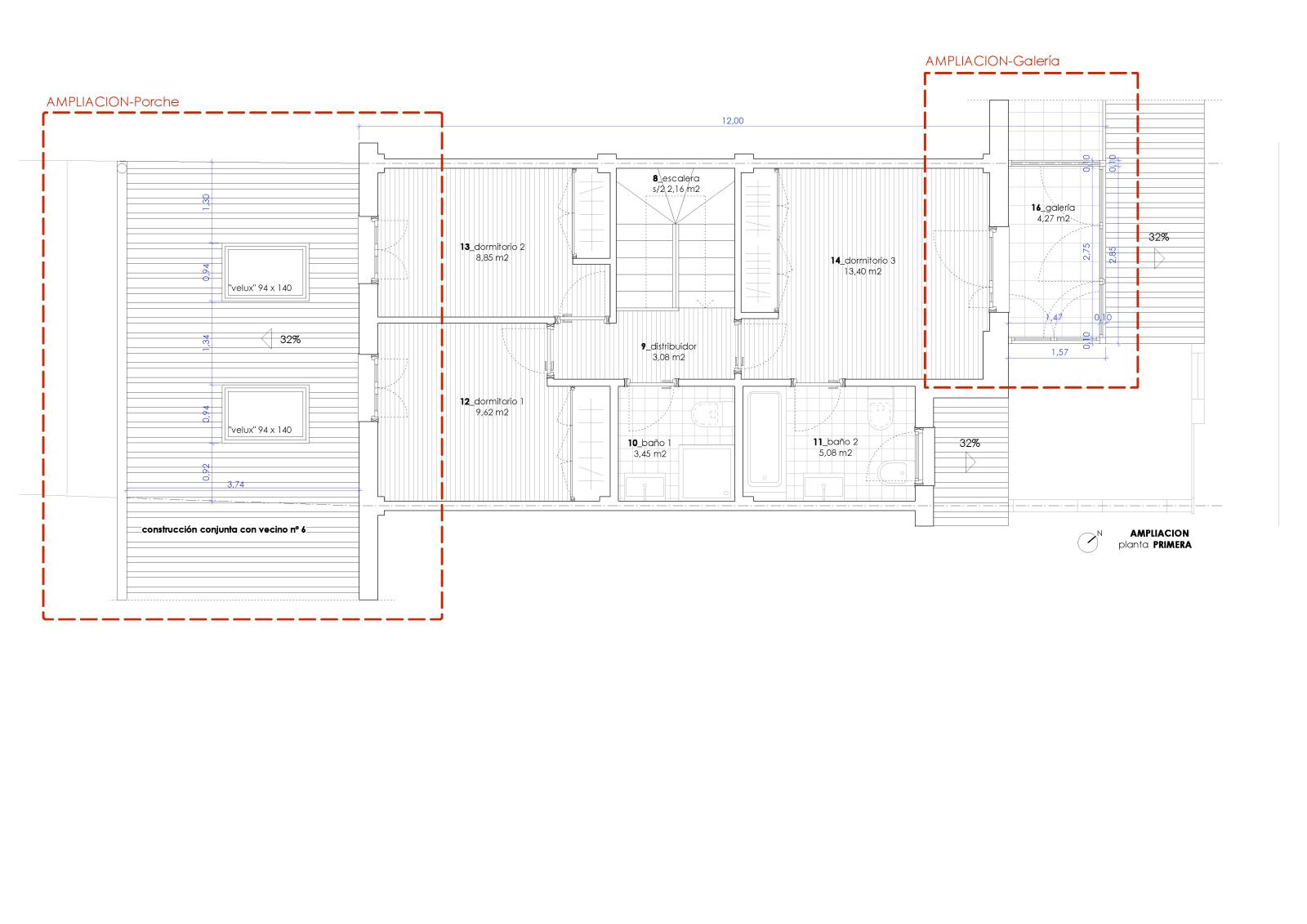
Ampliación y reforma de vivienda unifamiliar adosada. Se pretende actualizar la edificación y ampliar las zonas de porches y galerías exteriores para aumentar su superficie habitable.