Vivienda entre medianeras con un consumo energético casi nulo y una tipología de casa molinera con patio privado al fondo.
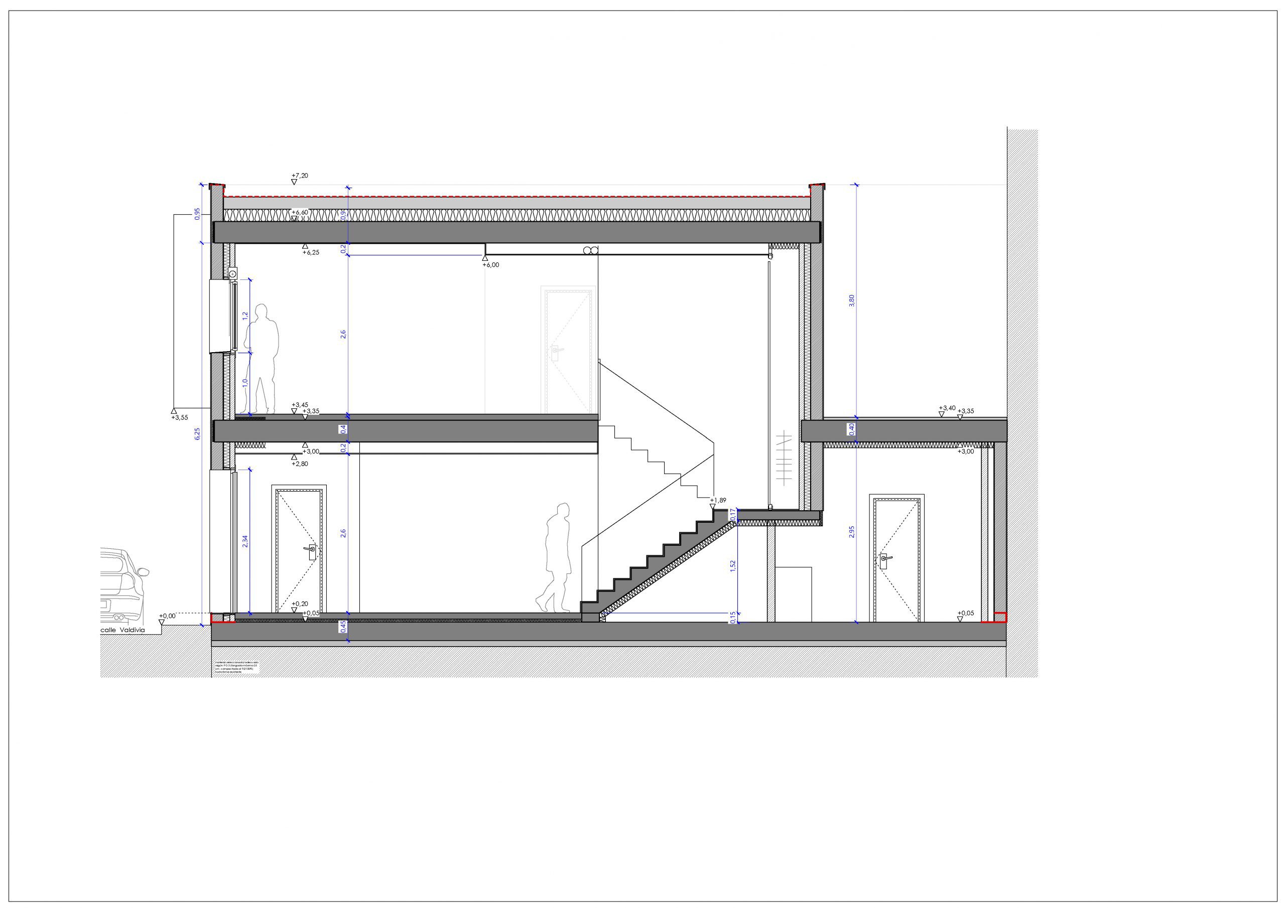
El programa de la vivienda se desarrolla de la siguiente forma: En la planta baja se dispone un espacio diáfano para almacenaje y aparcamiento de vehículos además de un hall que da acceso a la planta superior mediante una escalera. En la planta superior se distribuye la vivienda como tal, con sus dependencias de salón, cocina y demás elementos. En esta altura se plantea un patio abierto al fondo de la parcela al que se abren varios dormitorios.
- 200 m².
- 2020 –
- Palencia.








