Vivienda unifamiliar aislada situada en una nueva zona de expansión del núcleo.
Se plantea un desnivel artificial y se eleva ligeramente el volumen principal para así poder generar un semisótano muy iluminado. Toda la vivienda vuelca sus espacios hacia la zona central que conforma el jardín y piscina, así se evitan las visuales vecinas indeseadas.
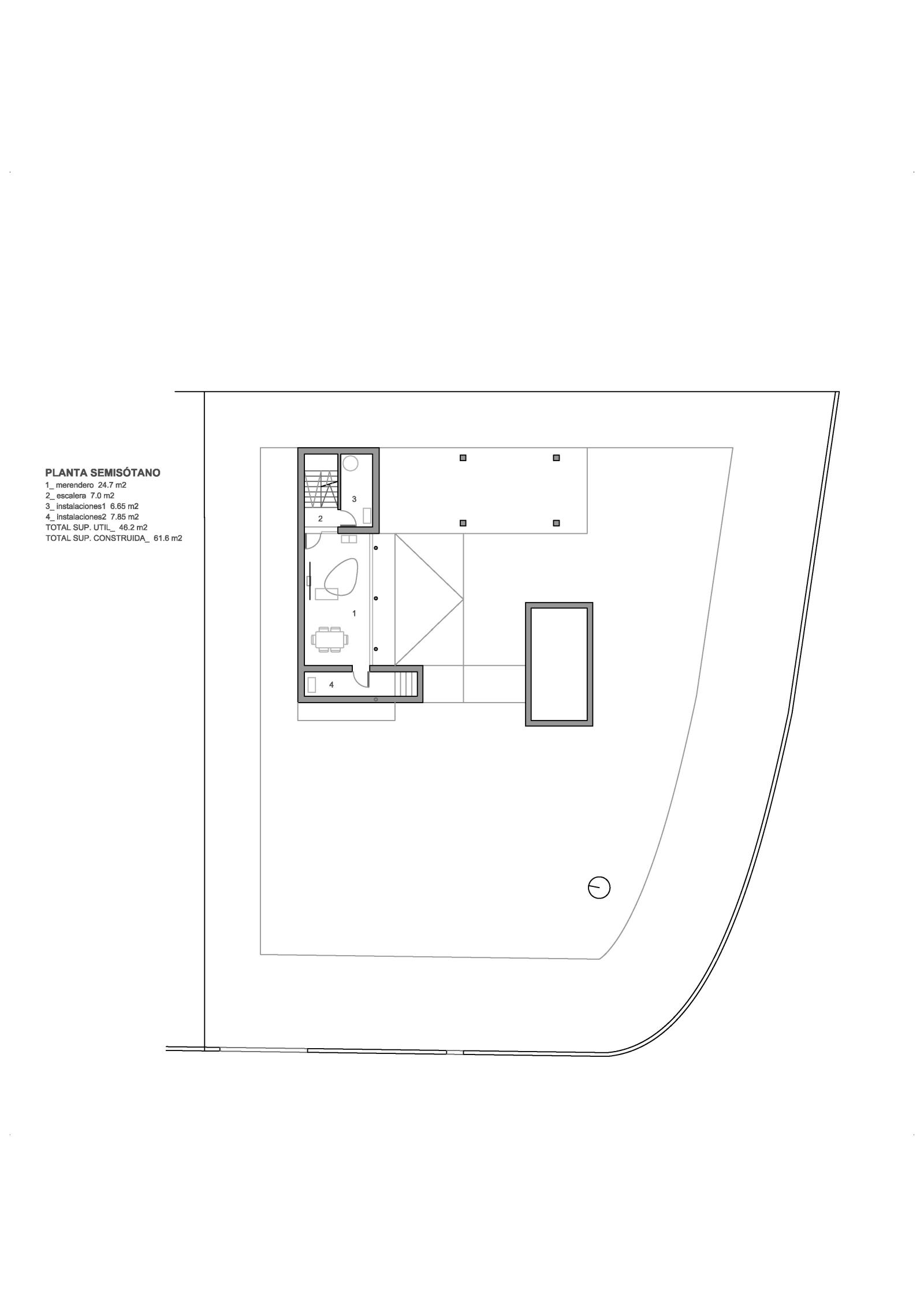
El programa se desarrolla de la siguiente forma: En la planta baja se dispone un porche cubierto de acceso, hall, salón-comedor, cocina, tres dormitorios dobles y dos baños. En el semisótano se distribuye un merendero abierto al jardín, aseo y sala de instalaciones.
- 112 m²
- 2006-
- Grijota, Palencia.









